Chiper Posted September 22, 2012 Posted September 22, 2012 (edited) Есть задача покрыть 8 этажное здание wifi, здание коридорного типа (длинный коридор 60 метров, маленький - 25. По обеим сторонам коридоров комнаты 18кв.м каждая). Я думаю, что необходимо установить в длинном коридоре 2 точки доступа (по его концам) с направленной внешней аненой на каждом этаже. При этом нужно настроить всё так, что бы у всех точек был единый SSID и пользователи могли спокойно перемещаться по зданию между зонами покрытия точек. Какое техническое решение можешь посоветовать? Реализовать всё на точках доступа с потдержкой WDS либо Wireless repeater скорее всего в моём случае не получится, ибо скорость будет хреновой и будет большая нагрузка на точку которая будет иметь физическое подключение к сети (в каждой комнате по 1-3 пользователя). Технически я могу связать все точки между собой через Ethernet сеть. В общем я не знаю технологий которые позволяют реализовать большую wifi сеть с единым SSID при которой связь между точками будет осуществляться через Ethernet, либо по WIFI но с нормальной пропускной скоростью (выходной канал в интернет 100 мегабит на всю затею). Либо, как вариант, посоветуйте оборудование которое позволит покруть все 8 этажей wifi с одного девайса и при этом обеспечит хорошую зону покрытия и не будут нарушаться санитарные нормы по мощности СВЧ. Здание как ни как жилое... Edited September 22, 2012 by Chiper Вставить ник Quote
SSD Posted September 22, 2012 Posted September 22, 2012 Есть задача покрыть 8 этажное здание wifi, здание коридорного типа (длинный коридор 60 метров, маленький - 25. По обеим сторонам коридоров комнаты 18кв.м каждая). Я думаю, что необходимо установить в длинном коридоре по 2 точки доступа (по его концам) с направленной внешней аненой на каждом этаже. При этом нужно настроить всё так, что бы у всех точек был единый SSID и пользователи могли спокойно перемещаться по зданию между зонами покрытия точек. Какое техническое решение можешь посоветовать? WDS и Wireless repeater скорее всего в моём случае не годятся, ибо скорость будет хреновой и будет большая нагрузка на точку которая будет иметь физическое подключение к сети. Технически я могу связать все точки между собой через на гигабитную Ethernet сеть. В общем я не знаю технологий которые позволяют реализовать большую wifi сеть с единым SSID при которой связь между точками будет осуществляться через Ethernet, либо по WIFI но с нормальной пропускной скоростью (выходной канал в интернет 100 мегабит на всю затею). Либо, как вариант, посоветуйте оборудование которое позволит покруть все 8 этажей wifi с одного девайса и при этом обеспечит хорошую зону покрытия и не будут нарушаться санитарные нормы по мощности СВЧ. Здание как ни как жилое... Берете Unifi девайсы, соеденяете все точки кабелем ставите на комп контроллер и рулите всем. Удобно и не дорого. Вставить ник Quote
NewUse Posted September 22, 2012 Posted September 22, 2012 Общага чтоль? бюджет как всегда никакой? Любые точки, хоть ТП-линки, ставите один ссид, в чём проблема? Роуминг при этом нормально работать не будет. Из дешёвого с хоть каким-то роумингом ---UniFi Вставить ник Quote
Saab95 Posted September 22, 2012 Posted September 22, 2012 Берете такие точки - Mikrotik RB751U-2HnD - настраиваете примерно вот так - http://www.lanmart.ru/blogs/mikrotik-rb751u-2hnd_rezim_wds_i_virtual_ap/ - и получаете примерно вот это - Вставить ник Quote
Chiper Posted September 22, 2012 Author Posted September 22, 2012 (edited) Общага чтоль? бюджет как всегда никакой? Ну ясное дело что общага, бюджет 3-7т.р. на каждый этаж. А можно конкретно ссылочку на подходящее устройство? Берете такие точки - Mikrotik RB751U-2HnD - настраиваете примерно вот так - http://www.lanmart.r...s_i_virtual_ap/ - и получаете примерно вот это - http://www.youtube.c...h?v=BZTzGr_ayls Вот это уже классно, а главное бюджетно! Но вопрос, возможно ли устроить связь между этими точками роутреами через Ethernet(100/1000Mbit/s)? Edited September 22, 2012 by Chiper Вставить ник Quote
SSD Posted September 22, 2012 Posted September 22, 2012 Вот это уже классно, а главное бюджетно! Но вопрос, возможно ли устроить связь между этими точками через Ethernet(100/1000Mbit/s)? Можно. 751 нормально работать не будет без дополнительной антенны, встроеные слабые. Вставить ник Quote
Chiper Posted September 22, 2012 Author Posted September 22, 2012 (edited) Вот это уже классно, а главное бюджетно! Но вопрос, возможно ли устроить связь между этими точками через Ethernet(100/1000Mbit/s)? Можно. 751 нормально работать не будет без дополнительной антенны, встроеные слабые. Ну про необходимость внешней антенны я написал ещё в первом посту :) 751 имеет MMCX разъём под внешнюю антену, возниаке вопрос - какие антенны лучше закупить... По идее мне необходимы направленные с небольшим радиуосм рассеивания т.к. коридор длинный, а площадь комнат относительно не большая. Перекрытия между комнатами и коридором в обащге из гидрокарбоната/фанеры/досок/кирпича. В общем перекрытия не о чём, перегородки между комнатами вообще хилые - сигналу ничего особо препятствовать не будет. Кроме того, хорошо бы чтоб антенна не распространяла сигнал в сторону стены, на которой она будет закреплена. Edited September 22, 2012 by Chiper Вставить ник Quote
NewUse Posted September 22, 2012 Posted September 22, 2012 http://ubntshop.eu/en/products/consumer-products/unifi вот таких по 5 на этаж, есть комплекты по 3 шт. + свитчи типа нетгиров для коммутирования этого дела + витуха, суммарно выйдет где-нить по 10-15тыр на этаж, при условии, что монтировать самостоятельно.... + контроллер/роутер (либо комп, либо edge-роутер, либо какой-нить RT-N16 с флешкой и ОпенВРТ ) Вставить ник Quote
Chiper Posted September 22, 2012 Author Posted September 22, 2012 (edited) http://ubntshop.eu/en/products/consumer-products/unifi вот таких по 5 на этаж, есть комплекты по 3 шт. + свитчи типа нетгиров для коммутирования этого дела + витуха, суммарно выйдет где-нить по 10-15тыр на этаж, при условии, что монтировать самостоятельно.... + контроллер/роутер (либо комп, либо edge-роутер, либо какой-нить RT-N16 с флешкой и ОпенВРТ ) Единая сеть в общаге у нас уже есть, да и 10-15к за этаж - это уж больно дофига, учитывая что у нас и так всё работает по Gigabit Ethernet соответственно все точки доступа будут цепляться уже к имеющимся свитчам, а WIFI будет не более чем дополнительная опция за 50р в месяц (с каждого девайса) :) Edited September 22, 2012 by Chiper Вставить ник Quote
SSD Posted September 22, 2012 Posted September 22, 2012 http://ubntshop.eu/en/products/consumer-products/unifi вот таких по 5 на этаж, есть комплекты по 3 шт. + свитчи типа нетгиров для коммутирования этого дела + витуха, суммарно выйдет где-нить по 10-15тыр на этаж, при условии, что монтировать самостоятельно.... + контроллер/роутер (либо комп, либо edge-роутер, либо какой-нить RT-N16 с флешкой и ОпенВРТ ) Единая сеть в общаге у нас уже есть, но 10-15к за этаж - это уж больно дофига, учитывая что у нас и так всё работает по Gigabit Ethernet соответственно все точки доступа будут цепляться уже к имеющимся свитчам, а WIFI будет не более чем дополнительная опция за 50р в месяц (с каждого девайса) :) Берите дешевые АР и ставьте их. Вставить ник Quote
NewUse Posted September 22, 2012 Posted September 22, 2012 ну тогда на свитчах и бухтах сэкономите, будет 8-10тыр/этаж Вставить ник Quote
Chiper Posted September 22, 2012 Author Posted September 22, 2012 (edited) Берите дешевые АР и ставьте их. В дешёвых точках нет толкового шейпера, (как например в D-link Dir300)... А нам надо, чтоб при небольшом количестве точек каждая могла держать по 10-30 человек без серьёзных проседаний в скорости (не ниже 4-8 мегабит)... Так что по моему лучше собрать мост из микротиков, у них приемлемая цена и при этом неплохая производительность. ну тогда на свитчах и бухтах сэкономите, будет 8-10тыр/этаж Всё равно дорого для нашей сети. Если ставить микротики + внешние антены, то всё обойдётся в 5-6 т.р. учитывая все расходы. Edited September 22, 2012 by Chiper Вставить ник Quote
SSD Posted September 22, 2012 Posted September 22, 2012 Берите дешевые АР и ставьте их. В дешёвых точках нет толкового шейпера, (как например в D-link Dir300)... А нам надо, чтоб при небольшом количестве точек каждая могла держать по 10-30 человек без серьёзных проседаний в скорости (не ниже 4-8 мегабит)... Так что по моему лучше собрать мост из микротиков, у них приемлемая цена и при этом неплохая производительность. ну тогда на свитчах и бухтах сэкономите, будет 8-10тыр/этаж Всё равно дорого для нашей сети. Такие хотелки надо отражать в первом посте. Микротик будет шейпить, и всем хорош кроме антенн. З.Ы. Проводную и беспроводную сеть надо разделить физически или на vlan'ы иначе она быстро ляжет от локального мусора и никакие шейперы не помогут. Вставить ник Quote
Chiper Posted September 22, 2012 Author Posted September 22, 2012 (edited) З.Ы. Проводную и беспроводную сеть надо разделить физически или на vlan'ы иначе она быстро ляжет от локального мусора и никакие шейперы не помогут. Да вот была идея, проложить под точки доступа ещё одну сеть, у нас в DGS3100 как раз прописаны Vlan id на каждый подсегмент (этаж). Можно ещё прописать 8 вланов чтоб беспроводная сеть работала по следующему принципу: На каждую пару микротиков (1 этаж) свой собственный Vlan ID, в головной микротик (который ближе к розетке) заведен Ethernet из DGS3100, второй микротик питаетя через Poe от первого. Или так делать не стоит и необходимо поставить обычный свитч (а лучше умный, например DES-1100), повесить на него все микротики и прописать под него один VLAN на DGS3100 ? Edited September 22, 2012 by Chiper Вставить ник Quote
NewUse Posted September 22, 2012 Posted September 22, 2012 пофигу, каким образом, главное, чтоб точки были в отдельном сигменте, можно таггировать прямо на точках и пускать через любой из ваших свитчей, даже совсем тупых.... Вставить ник Quote
Saab95 Posted September 22, 2012 Posted September 22, 2012 Еще у микротика на бридже можно различные фильтры вешать, что так же поможет уменьшить количество мусорного трафика. Вместо 751 можно Groove A-2Hn использовать, вкрутив во всенаправленную или секторную антенну. Вставить ник Quote
Chiper Posted September 22, 2012 Author Posted September 22, 2012 (edited) Groove A-2Hn А почему он дороже чем 751, несмотря на то, что по себестоимости (исходя из схемотехники) A-2Hn стоит на много дешевле? Вся фишка именно в компактных размерах, или у A-2Hn характеристики по работе с беспроводной сетью лучше? Я просто не особо разбираюсь в стандартах беспроводных сетей, не занимался ещё wifi серьёзно до этого момента... Edited September 22, 2012 by Chiper Вставить ник Quote
Saab95 Posted September 22, 2012 Posted September 22, 2012 Он просто предназначен для уличного использования, ну и естественно компактные размеры, так же в комплекте инжектор питания, это еще +100 рублей к стоимости. Вставить ник Quote
SSD Posted September 22, 2012 Posted September 22, 2012 Еще у микротика на бридже можно различные фильтры вешать, что так же поможет уменьшить количество мусорного трафика. Вместо 751 можно Groove A-2Hn использовать, вкрутив во всенаправленную или секторную антенну. Cекторная антенна в помещении, это гуд. Вставить ник Quote
Saab95 Posted September 22, 2012 Posted September 22, 2012 Можно плату RB711U-2HnD в корпус EF Elements StationBox Micro 9dB засунуть. Сам производитель говорил что они применяются внутри помещения. Еще у микротика на бридже можно различные фильтры вешать, что так же поможет уменьшить количество мусорного трафика. Вместо 751 можно Groove A-2Hn использовать, вкрутив во всенаправленную или секторную антенну. Cекторная антенна в помещении, это гуд. Если в нее не вдувать по 28дбм мощности, а ограничить на уровне 8-10, то все работает нормально, т.к. чувствительность с такой антенной намного выше и слабые сигналы от мобильных устройств доходят до БС с максимального расстояния через несколько стен. Вставить ник Quote
SSD Posted September 22, 2012 Posted September 22, 2012 Можно плату RB711U-2HnD в корпус EF Elements StationBox Micro 9dB засунуть. Сам производитель говорил что они применяются внутри помещения. Еще у микротика на бридже можно различные фильтры вешать, что так же поможет уменьшить количество мусорного трафика. Вместо 751 можно Groove A-2Hn использовать, вкрутив во всенаправленную или секторную антенну. Cекторная антенна в помещении, это гуд. Если в нее не вдувать по 28дбм мощности, а ограничить на уровне 8-10, то все работает нормально, т.к. чувствительность с такой антенной намного выше и слабые сигналы от мобильных устройств доходят до БС с максимального расстояния через несколько стен. Чуствительность чего? Вставить ник Quote
Saab95 Posted September 22, 2012 Posted September 22, 2012 Чуствительность чего? Приемного тракта. Если использовать маленькую антенну, например 2дби, то можно поднять мощность передатчика и все устройства смогут на большом расстоянии наблюдать много палочек в скане беспроводных сетей, но подключиться не смогут, т.к. база не услышит их сигналы. Если поставить секторную антенну, то мощность передатчика надо уменьшить. В итоге клиентские устройства так же будут видеть много палочек, однако смогут подключаться к БС с большого расстояния, ведь усиление секторной антенны выше и слабые сигналы от них дойдут до нее. Вставить ник Quote
SSD Posted September 22, 2012 Posted September 22, 2012 Чуствительность чего? Приемного тракта. Если использовать маленькую антенну, например 2дби, то можно поднять мощность передатчика и все устройства смогут на большом расстоянии наблюдать много палочек в скане беспроводных сетей, но подключиться не смогут, т.к. база не услышит их сигналы. Если поставить секторную антенну, то мощность передатчика надо уменьшить. В итоге клиентские устройства так же будут видеть много палочек, однако смогут подключаться к БС с большого расстояния, ведь усиление секторной антенны выше и слабые сигналы от них дойдут до нее. Чувствительность это одна из характеристик приемника, от антенны она не зависит. С антенной на 2 дБ или на 102 дБ она все равно будет одинаковой. Вставить ник Quote
Chiper Posted September 22, 2012 Author Posted September 22, 2012 (edited) В итоге клиентские устройства так же будут видеть много палочек, однако смогут подключаться к БС с большого расстояния, ведь усиление секторной антенны выше и слабые сигналы от них дойдут до нее. А с точки зрения санитарных норм, какой мощностью можно жарить людей СВЧ в помещении без риска для их здоровья? И ещё, я посмотрел стоимость секторных антенн, они по дороже самого микротика будут :) И кстати! А что, если зафигачить по концам коридора такие девайсы- http://www.lanmart.ru/mikrotik-cpe-9dbi-mimo-2ghz.html ?) Edited September 22, 2012 by Chiper Вставить ник Quote
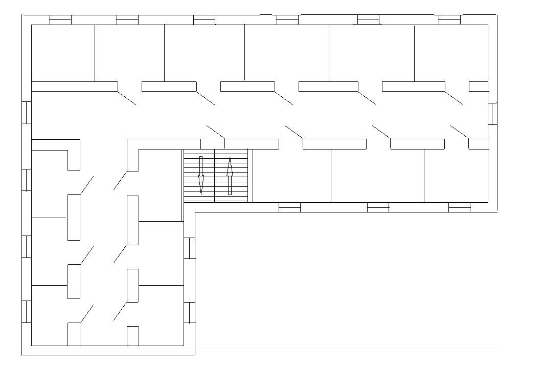
[S] Posted September 23, 2012 Posted September 23, 2012 Chiper, это StationBox Micro с каким-то MikroTik внутри, судя по харастеристикам это RB711-2HnD, лицензия L3, если вам подойдет, то почему бы и нет. Однако, если собирать по частям, то стоить будет чуточку дешевле: http://wifimag.ru/cat/592/mikrotik_routerboard_rb711_2hnd/ - 1584 р. http://wifimag.ru/cat/633/rf_elements_stationbox_mikro_2_4ghz_9dbi_mimo_antena/ - 557 р. http://wifimag.ru/cat/645/pigteyl_mmcx_ra_mmcx_ra_140_mm/ - 2*100р. http://wifimag.ru/cat/646/power_ethernet_adapter_with_poe_24v_1a/ - 181 р. Итого: 2522 р. Судя по рисунку, вам таких надо две на этаж, либо с дальних углов к центру, либо от центра к дальним углам. Вставить ник Quote
Recommended Posts
Join the conversation
You can post now and register later. If you have an account, sign in now to post with your account.