dimm_ Posted September 19, 2012 Posted September 19, 2012 (edited) Коллеги, собсвенно САБЖ, необходима пример схемки по подключению к сети 220В стойки. Если не жалко поделитесь... схема должна быть приложением к договору с арендодателем где стоит стойка.. но у него ничего нет подобного.. Edited September 19, 2012 by dimm_ Вставить ник Quote
Firsa Posted September 19, 2012 Posted September 19, 2012 Схема будет при заключении договора с электросбытовой компанией, при подписании акта балансового разграничения мощностей. Если будете все делать КАК ПОЛОЖЕНО, то вам эти же энергосбытоВЩИКИ и нарисуют её. А для "ПРОСТО, ЧТОБЫ БЫЛА"...то: тема уже обсуждалась не раз на данном форуме. PS или обращайтесь к местным энергетикам - они помогут, потому как кроме них Вам точно никто ничего не скажет. Вставить ник Quote
danilbal Posted September 20, 2012 Posted September 20, 2012 Я понимаю что моя фраза может звучать некоррекно, но мне страшновато когда подключает электричество человек не способный однолинейную схему нарисовать. Если не вы включаете - попросите того кто включает нарисовать - там ВО не надо:) Вставить ник Quote
Firsa Posted September 20, 2012 Posted September 20, 2012 (edited) Я понимаю что моя фраза может звучать некоррекно, но мне страшновато когда подключает электричество человек не способный однолинейную схему нарисовать. Если не вы включаете - попросите того кто включает нарисовать - там ВО не надо:) +1 Мало того, если что-то где-то ЗАМКНЕТ...и НЕ ДАЙ ТЫ Бог, случится пожар...потом просто ТАК не отбрешешься... А это вплоть до уголовной ответственности... Есть у Вас пару лет "посидеть", поучиться на Электрика на нарах? Я думаю НЕТУ. Поэтому руки в ноги и бегом к энергетикам! (или на худой конец к УК, заключать договор и пускай электрик УК ваши точки запитывает САМ!) Edited September 20, 2012 by Firsa Вставить ник Quote
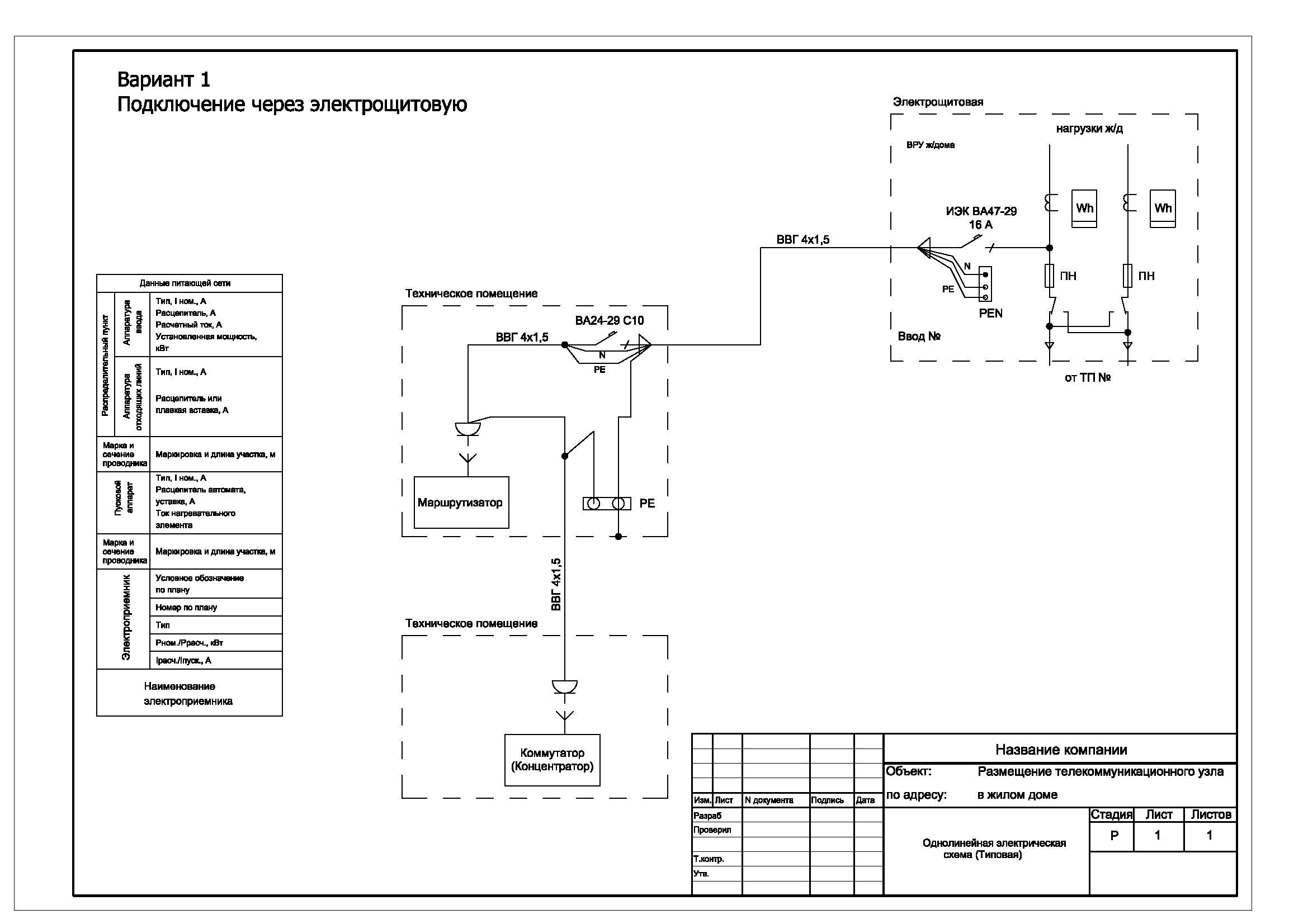
Галушко Дмитрий Posted September 24, 2012 Posted September 24, 2012 Схема будет при заключении договора с электросбытовой компанией, при подписании акта балансового разграничения мощностей. Если будете все делать КАК ПОЛОЖЕНО, то вам эти же энергосбытоВЩИКИ и нарисуют её. А для "ПРОСТО, ЧТОБЫ БЫЛА"...то: тема уже обсуждалась не раз на данном форуме. PS или обращайтесь к местным энергетикам - они помогут, потому как кроме них Вам точно никто ничего не скажет. Зачем арендатору подключаться к энергетикам? Я в аренду взял помещение, УЖЕ подключенное к электричеству... Пример схемки во сложении Вставить ник Quote
Firsa Posted September 24, 2012 Posted September 24, 2012 (edited) я говорю о том, ЧТОБЫ МОНТАЖ производили не сами, а местные электрики от УК, с которой у договор. (чтоб сами не лазили в щитки просто) Я в аренду взял помещение, УЖЕ подключенное к электричеству... Все верно. Надо "брать" с УЖЕ проведенными розетками. Но тАгды ПО КАЖДОМУ АДРЕСУ такую схемку рисуйте....а это бывает что не по одной в подъезде... Зачем арендатору подключаться к энергетикам? незнаю. А кто об этом говорил? )) Я только сказал, что при подключении (когда монтажники начинают подключать САМИ) лучше местных электриков вызвать - пусчай сами лезт в свое "хозяйство". PS по схемам не скажу - не шарю. Edited September 24, 2012 by Firsa Вставить ник Quote
roling Posted September 25, 2012 Posted September 25, 2012 PS по схемам не скажу - не шарю. По схемам - должно быть еще указано энергопотребление оборудования, а то на входе 16 А., а потребление может 20 - 22А или того больше. И такие схемы должны быть действительно по каждому ящику. Хотя изготавливаются они понятное дело на основе типовой, утвержденной. Вставить ник Quote
Галушко Дмитрий Posted September 26, 2012 Posted September 26, 2012 я говорю о том, ЧТОБЫ МОНТАЖ производили не сами, а местные электрики от УК, с которой у договор. (чтоб сами не лазили в щитки просто) Я в аренду взял помещение, УЖЕ подключенное к электричеству... Все верно. Надо "брать" с УЖЕ проведенными розетками. Но тАгды ПО КАЖДОМУ АДРЕСУ такую схемку рисуйте....а это бывает что не по одной в подъезде... Зачем арендатору подключаться к энергетикам? незнаю. А кто об этом говорил? )) Я только сказал, что при подключении (когда монтажники начинают подключать САМИ) лучше местных электриков вызвать - пусчай сами лезт в свое "хозяйство". ... Не правда (ниже Ваша цитата): Схема будет при заключении договора с электросбытовой компанией, при подписании акта балансового разграничения мощностей. Если будете все делать КАК ПОЛОЖЕНО, то вам эти же энергосбытоВЩИКИ и нарисуют её. Вставить ник Quote
Firsa Posted September 26, 2012 Posted September 26, 2012 (edited) Если цитируете меня, то цитируйте полностью. Я предложил ДВА варианта: ПЕРВЫЙ с энергоСБЫТОВЩИКАМИ (это если "как положено"все делать): Схема будет при заключении договора с электросбытовой компанией, при подписании акта балансового разграничения мощностей. Если будете все делать КАК ПОЛОЖЕНО, то вам эти же энергосбытоВЩИКИ и нарисуют её. и ВТОРОЙ заключаете договор с УК/ТСЖ и пускай производят подключение местные электрики из этого же УК/ТСЖ (это если "ЧТОБЫ БЫЛО ЧТО ТО"), : А для "ПРОСТО, ЧТОБЫ БЫЛА"...то: тема уже обсуждалась не раз на данном форуме. PS или обращайтесь к местным энергетикам - они помогут, потому как кроме них Вам точно никто ничего не скажет. Edited September 26, 2012 by Firsa Вставить ник Quote
Галушко Дмитрий Posted September 26, 2012 Posted September 26, 2012 Для неПонятнливых повторяю вопрос: dimm_ указал схема должна быть приложением к договору с арендодателем где стоит стойка Кем положено заключать договор с энергетиками? Ну и по второму варианту: при чем здесь УК? Вставить ник Quote
Firsa Posted September 26, 2012 Posted September 26, 2012 эта цитата: Просмотр сообщенияГалушко Дмитрий (24 сентября 2012 - 16:49) писал: Я в аренду взял помещение, УЖЕ подключенное к электричеству... Все верно. Надо "брать" с УЖЕ проведенными розетками. так же относится ко ВТОРОМУ варианту Вставить ник Quote
Firsa Posted September 26, 2012 Posted September 26, 2012 (edited) Ну и по второму варианту: при чем здесь УК? ОЧЕНЬ ЧАСТО "прокатывает" вариант ВТОРОЙ, когда при заключении договора Аренды с УК или ТСЖ в этом договору уже ВКЛЮЧЕНЫ электророзетки, освещение и т.п....и поэтому ПЕРВЫЙ ВАРИАНТ не требуется...(я не говорю, что это правильный путь развития и что не надо будет делать договор с Энергосбытовщиками (ЕЩЕ КАК НАДО!!!), но для тех, кто ТОЛЬКО НАЧИНАЕТ, это чуть ли не единственный выход, для того, чтобы "не утонуть" под весом "плати тому, тому, тому и еще хер знает кому"...) PS Дмитрий, прошу прощения за возможную бестактность, но все же спрошу: у Вас был собственный телеком-бизнес? Вы сами работали что называется с "нуля"? PSS это я к тому, что если все и всегда делать по-закону, то жить в нашей стране НЕВОЗМОЖНО, а уж тем более делать бизнес... Edited September 26, 2012 by Firsa Вставить ник Quote
Firsa Posted September 26, 2012 Posted September 26, 2012 (edited) Для неПонятнливых повторяю вопрос: dimm_ указал Цитата схема должна быть приложением к договору с арендодателем где стоит стойка Кем положено заключать договор с энергетиками? - Арендодатель это кто? - ООО/ИП/.... (допустим!) - Что предоставляет Арендодатель? - Помещение! (площадь, место под размещение стойки) - Надо ли заключать договор с Энергосбытовой компанией? - НАДО! - Кому? - Тому кто размещает на АРЕНДОВАННОЙ площади СВОЮ стойку. Какие вопросы то? Тут есть ДВА варианта, которые я УЖЕ расписал. Edited September 26, 2012 by Firsa Вставить ник Quote
Галушко Дмитрий Posted September 26, 2012 Posted September 26, 2012 Наше прошлое читайте на нашем сайте. Там есть все ответы на Ваши вопросы. п.с. Знание Закона помогает сэкономить деньги. п.п.с. Фирсов, а Вы сами работали юристом? Вставить ник Quote
Firsa Posted September 26, 2012 Posted September 26, 2012 ))) да, НО 1) сразу после института (небыло опыта); 2) в банке (соответствующее направление); 3) не долго, как хотелось бы. ...а потом ушел с головой в Телеком... (кстати, обращался к Вам для получения Лицензий ;) Спасибо! Вставить ник Quote
Галушко Дмитрий Posted September 26, 2012 Posted September 26, 2012 Да, действительно, я был ответственным по Вашей заявке. Рад что Вас устроил результат. Но обращались Вы не к моей компании, а к Пыжову Глебу (он руководитель и учредитель ныне покойного НеКстеРа). Вставить ник Quote
Recommended Posts
Join the conversation
You can post now and register later. If you have an account, sign in now to post with your account.