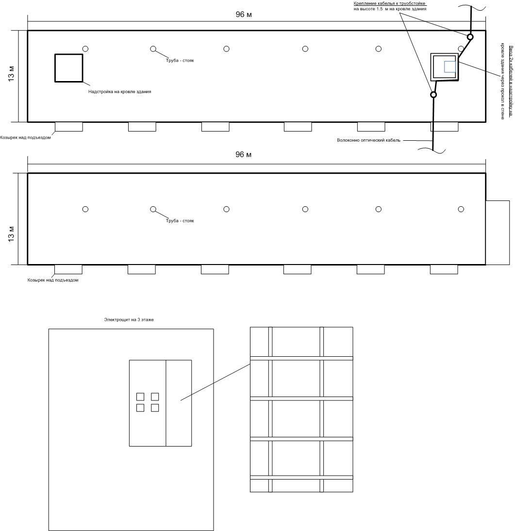
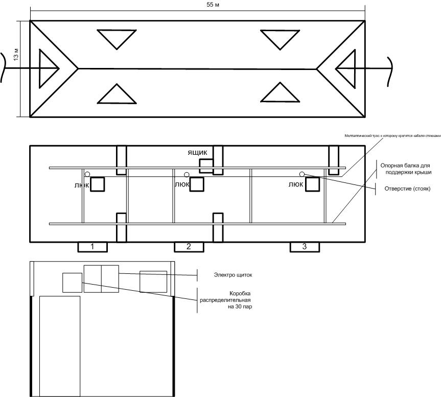
mao2201 Posted December 21, 2010 Posted December 21, 2010 Мы хотим переделать нашу пионерскую сеть. Сейчас у нас имеется сеть со следующей структурой: до каждого дома протянуто оптоволокно и почти везде на концах стоят конвертора (100 mb), далее идет свитч который находится на крыше (в надстройке на кровле здания) либо на чердаке, чаще всего свитч 8 портов не управляемый от которого идут кабеля в подъезды. На пятых этажах которых находятся так же 8 портов не управляемые свитчи и от них идут кабеля до абонентов. В во всей сети применяется витая пара 4 жилы. Вобщем то как я и говорил классический пример пионерской сети. Теперь нам хочется переделать нашу сеть, мы закупили антивандальные ящики на 9u (http://www.lanset.ru/product/e-2-mod/) c 19" кросами, свичи. Вот 4 варианта как может выглядеть ящик изнутри . От ящика идут 8 жильные кабеля в каждый подъезд (2 абонента на кажый кабель количество зависит от абонентов в каждом подъезде). Почему восьмижильне, а не многопарник потому что так дешевле как нам кажется. Которые заводятся в коробку (http://anlan.ru/catalog/1870). В коробку устанавливаются плинты (http://anlan.ru/catalog/6706) где кросируются абоненты с проходящими 8ми жильными кабелями . В дома без чердака, хотим ящик с активкой перенести в подвал и вывести кабеля 8 жил на 3 этажи подъездов и в радио щитке поставить плинты и там закроссировать абонентов Теперь вопросы: 1. Какие лучше использовать плинты (соотношение цена-качество). 2. Какую лучше использовать схему с оборудованием в антивандальных ящиках (соотношение цена-качество, ремонтопригодность). 3. На каких этажах лучше ставить плинты. 4. Если кто то строил сеть по такой схеме хотелось бы услышать достоинства и недостатки. Вставить ник Quote
andreyk Posted December 21, 2010 Posted December 21, 2010 (edited) Тоже мозгуем сейчас на счет переделки ДРС, пришли к следующему: 1. На плинтам типа KRONE работать будет, но лучше использовать плинты под 5ю категорию. В виду того что у нас тяжело достать плинты 5й категории будем использовать кросс-блоки 110го типа на 50 пар 2. Лучше использовать многопарный кабель вместо пучка витух. Многопарку разделывать на кросс-блок(блоки) на нужное кол-во пар, но в этом варианте могут быть проблемы с излишками патчкордов. Второй вариант -расшивать многопарку на патч-панели, мы остановились именно на нем. Тут периодически в ужастиках проскакивают обзоры правильных сетей, можно посмотреть там, поучительно. 3. Плинты/кросс-блоки лучше ставить на этаже ближайшем к точке входа многопарного кабеля если стояки не забиты, в противном случае ставить их где-то в районе центра дома - своеобразная экономия места в стояке. 4. Все только на этапе планирования, опять же обратиться к материалу на сайте, тут есть много чего на эту тему. Edited December 21, 2010 by andreyk Вставить ник Quote
SNSheriff Posted December 21, 2010 Posted December 21, 2010 получится тот же пенсионер-нет, только в профиль. оптика как я понимаю вся воздушками ? на всех домах муфта на крыше или чердаке. 4ка в подвал. 19" ящик. гигабитный свич L2 с парой SFP. абонентов расшивать на патч-панель, UTP Cat.6 в каждую квартиру. если стояки непроходимы - делать свои плинты - наживете себе лишнего гемора.... любое соединение - место потенциально ненадежное. витуху на две квартиры расшивать ? а смысл ? все равно через год-полтора-два все это придется перетягивать. почему подвал ? меньше проблем с доступом, и никто не скажет что монтажники крышу попортили. НИКАКОГО оборудования , ни активного , ни кроссового в абонентских щитках!!! только кабеля от ящика в подвале до абонента. Вставить ник Quote
darkagent Posted December 21, 2010 Posted December 21, 2010 UTP Cat.6 в каждую квартиру. а чего так жирно? 5е для гига зауши... Вставить ник Quote
SNSheriff Posted December 21, 2010 Posted December 21, 2010 UTP Cat.6 в каждую квартиру.а чего так жирно? 5е для гига зауши... ХОРОШИЙ 5е не намного дешевле шестерки....а переход от пиоенер-нета должен иметь своей целью обеспечение КАЧЕСТВА предоставляемых услуг, единственный вид неисправности при нормально построенной сети - тупой юзверь отключил сетевую карту. Вставить ник Quote
lomal Posted December 21, 2010 Posted December 21, 2010 витуху на две квартиры расшивать ? а смысл ? все равно через год-полтора-два все это придется перетягивать. Зачем перетягивать?Тут периодически в ужастиках проскакивают обзоры правильных сетей, можно посмотреть там, поучительно. Улыбнуло. Вставить ник Quote
zloy59 Posted December 21, 2010 Posted December 21, 2010 получится тот же пенсионер-нет, только в профиль. оптика как я понимаю вся воздушками ? на всех домах муфта на крыше или чердаке. 4ка в подвал. 19" ящик. гигабитный свич L2 с парой SFP. абонентов расшивать на патч-панель, UTP Cat.6 в каждую квартиру. если стояки непроходимы - делать свои плинты - наживете себе лишнего гемора.... любое соединение - место потенциально ненадежное. витуху на две квартиры расшивать ? а смысл ? все равно через год-полтора-два все это придется перетягивать. почему подвал ? меньше проблем с доступом, и никто не скажет что монтажники крышу попортили. НИКАКОГО оборудования , ни активного , ни кроссового в абонентских щитках!!! только кабеля от ящика в подвале до абонента. Пробовали плинты и многопарку развели несколько домов Плинты неудобно забивать, а когда клиент отключается и вместо него хочет другой надо бить в эти же ячейки, а контакт может и потеряться, а значит весь плинт перебивать, а это простой потерия связи, сопли клиентов. А если весь плинт занят? кидать еще одну многопарку для одного клиента, а где экономический смысл? притом что стоимость многопарки и восьмерки практически не отличаются, и восьмеркой набрать емкость дешевле получается. Сейчас спускаем по 2 восьмерки на 5 этаж у своего стояка половиним и на модули KeyStone (можно и на патч-панель расшивать, но ее постоянно дергать надо будет, а так болтается модуль и не мешает, а если в подъезде 1-2 клиента то патч панель простаивать будет и где смысл в ней?), их складываем в аналогичные шкафы, теперь при миграции клиентов сосок от отключенного клиента свободно болтается, а если надо подключить еще одного клиента монтажники докладывают восьмерку т.е. запас еще на одного. Раньше вытягивали кабель от ящика до клиента, но это долго и муторно. Не всякого студента пустишь в ящик с активкой только чтоб коннектор воткнуть, а напортачить может на много. В принципе тоже не гуд но на период развития достаточно и так, когда GEPON от УСИ пыхтит где то сзади изголяться и наводить красоту для чего и для кого??? Вставить ник Quote
Negator Posted December 21, 2010 Posted December 21, 2010 Уфф советчиков понабежало Кто то плинты советует, кто то 6 категорию А для работы надо 1-Минимизировать разьемные соединения, да и не только разьемные. Плинты и прочее -в топку. не выдерживает оно наших реалий Да и делать ДРС на все квартиры если подключился 1-2 абонент в доме экономически не выгодно. Просто тяните честно каждому кабель из ящика 2-Сделать нормальные ящики со стойками и прикрепить свичи и опту как положено. Кассету с оптикой лучше прикрепить и убрать подальше от шаловливых рук 3-Озаботиться нормальной оптической звездой и бесперебойниками на критичных узлах сети 4- нанять нормальный штат техподдержки и делать все ремонты за 1 день. Порой куда эффективнее быстро решить проблему чем иметь сверхнадежную сеть и долго идти когда что то все же упало или просто отрезали кабель. Вставить ник Quote
mao2201 Posted December 22, 2010 Author Posted December 22, 2010 получится тот же пенсионер-нет, только в профиль. оптика как я понимаю вся воздушками ? на всех домах муфта на крыше или чердаке. 4ка в подвал. 19" ящик. гигабитный свич L2 с парой SFP. абонентов расшивать на патч-панель, UTP Cat.6 в каждую квартиру. если стояки непроходимы - делать свои плинты - наживете себе лишнего гемора.... любое соединение - место потенциально ненадежное. витуху на две квартиры расшивать ? а смысл ? все равно через год-полтора-два все это придется перетягивать. почему подвал ? меньше проблем с доступом, и никто не скажет что монтажники крышу попортили. НИКАКОГО оборудования , ни активного , ни кроссового в абонентских щитках!!! только кабеля от ящика в подвале до абонента. Если сделать вышеуказанным способом то придется каждому абоненту кабель в квартиру заново тянуть? Если не тянуть то как состыковать абонентов уже протянутых с патч панелью ? Вставить ник Quote
mao2201 Posted December 22, 2010 Author Posted December 22, 2010 Спасибо всем кто откликнулся. Вставить ник Quote
labi Posted December 22, 2010 Posted December 22, 2010 (edited) 1. Какие лучше использовать плинты (соотношение цена-качество).2. Какую лучше использовать схему с оборудованием в антивандальных ящиках (соотношение цена-качество, ремонтопригодность). 3. На каких этажах лучше ставить плинты. 4. Если кто то строил сеть по такой схеме хотелось бы услышать достоинства и недостатки. Подобную систему нам заказывали, мы её делали, партнёры её внедряли, но развития она не получила. Где-то здесь её обсуждали. Достоинства - какая-никакая СКС. Преимущества - можно по одной паре подать телефон, по другой - домофон и по оставшимся - Интернет, что и раньше никому не было нужно, а завтра вообще не будет иметь смысла. Самая высокая плотность у 110 плинтов. Но их геморройно разбивать, плюс конструкция получается высокой и достаточно неприятной в пользовании (всё вставляется и вынимается жутко туго). Плинты Krone имеют меньшую плотность, но очень просты и удобны в работе. Плюс их можно механически размыкать (например, при неоплате). В шкафчике, где стоит коммутатор (ры) смысла ставить 110/krone плинты совсем нет. Коммутатор имеет дырки RG45 и проще и удобнее соединить его с RG-45 патчпанелью. Патчкорды можно изготовить в размер или спрятать в бооольшой кросс-организатор. Тем более, стандартная патчпанель с сзади имеет ножевые разъёмы (IDC) на которые удобно расшиваются многопарники или простые UTP-шки. В подъезде, если реально хочется поставить плинты, то Krone будет удобнее. Тем более, под них есть много разных коробочек. 110-е ну очень высоки и ящик под них нужен соответствующий. Если вы строите "СКС", то плинты должны стоять на каждом этаже (вместе с плинтами/панелями в шкафу составлять постоянные кабельные линии). Таки ключевая идея СКС - избыточность портов плюс постоянные линии. Однако, с моей точки зрения, проще поставить стандартные патчпанели, многопортовые розетки (muTOA) или патчпанели с фронтальным расположением всех портов. Для переключения/подключения пользователей это, наверняка, будет удобнее. Edited December 22, 2010 by labi Вставить ник Quote
Recommended Posts
Join the conversation
You can post now and register later. If you have an account, sign in now to post with your account.